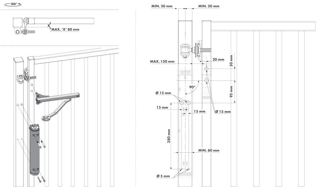
Locinox VERTICLOSE-2 Powerful Hydraulic All Round Gate Closer For 90° and 180° Hinges
The Verticlose-2 gate closer is top-of-the-range within the Verticlose product series. It is extremely multifunctional and possesses excellent features, which makes Verticlose-2 a perfect fit for both 90° and 180° hinge situations. The integrated pre-tension and continuous adjustability of speed and final snap, combined with our Quick-fix mounting system, guarantee a quick and efficient installation. The aesthetic anodized aluminium gate closer with high-tech internal components ensures an exceptionally long life span
£281.78£234.82 Excl. VAT
Description
Locinox VERTICLOSE-2 Powerful Hydraulic All Round Gate Closer For 90° and 180° Hinges
- Micro adjustment of speed and final snap
- Railset included for 90° and 180° situations
- Scratch resistant and corrosion free anodized aluminium housing
- Aesthetic & compact design
- Integrated pretension for extra smooth installation
- Closing force over the full 180° opening angle
- Firmly fixed thanks to patented Quick-Fix system
- Easy to open: Max. 25 Nm
PDF Manual
Download PDF Manual Here: MANU-000417_23.07











Metal Short Driveway Gates